Porzione di bifamiliare in vendita

Cagliari, Via Firenze - Bonaria
€ 649.000
Prezzo aggiornato
4 locali 4 locali
179 Mq 179 Mq
3 bagni 3 bagni

Porzione di bifamiliare in vendita

Cagliari, Via Firenze - Bonaria

Descrizione annuncio

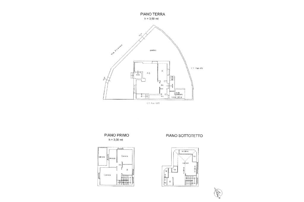
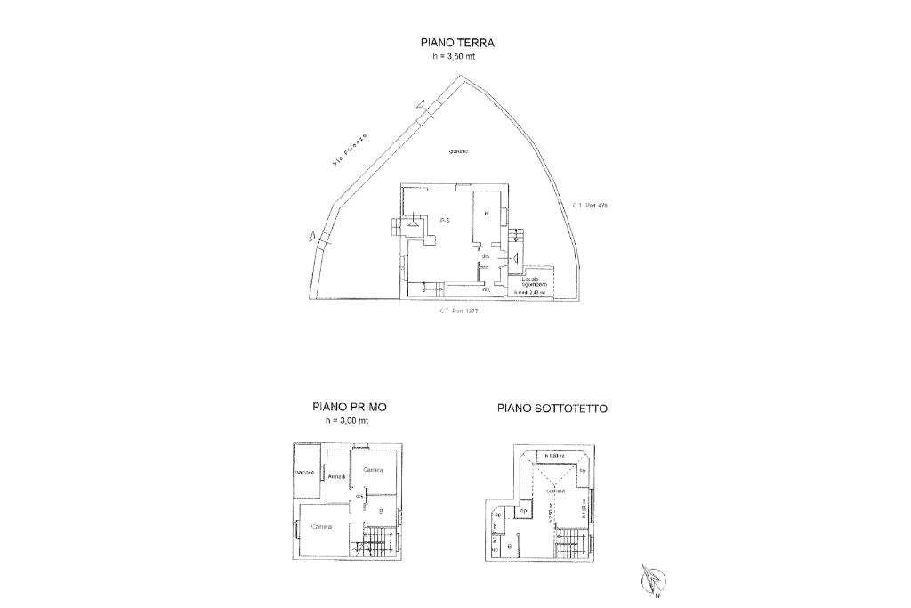
Nella centrale e tranquilla Via Firenze, nel quartiere Bonaria, uno dei sette storici colli della città di Cagliari, proponiamo in vendita un ampio villino con ingresso indipendente, dalle generose metrature con giardino di proprietà.

La soluzione è disposta su tre livelli. Al piano terra, l’ingresso dà sul luminoso soggiorno, dal quale, il disimpegno conduce alla cucina separata e a un bagno di servizio. Dallo stesso disimpegno, è possibile accedere al giardino, che percorre i tre lati liberi dello stabile e dove è presente un comodo spazio lavanderia. L’area esterna è perfetta per godersi momenti di relax in famiglia o con gli amici. Inoltre, il cancello con passo carrabile permette di custodire la propria vettura all’interno della proprietà.

Dalla scala interna, si sale al primo piano, che ospita la zona notte, con il bagno padronale, due camere matrimoniali e una singola. Da quest’ultima, attraverso una porta-finestra, si accede al luminoso balcone all’angolo tra Via Firenze e Via Siracusa.

Dal corridoio, la scala porta al secondo piano, in cui è presente un camino e un terzo servizio. Questo piano si presta a essere utilizzato come ulteriore camera da letto, come studio personale o sala relax. Questo ambiente, inoltre, presenta delle affascinanti travi a vista.

L’immobile è spazioso, luminoso e ben arieggiato, grazie al giardino e allo spiazzo prospicente. L’ideale per chi desidera la comodità dell’indipendenza senza rinunciare agli spazi esterni, alla centralità della zona, oltre che della sua tranquillità.

Mostra tutto

Nelle vicinanze

Trasporto pubblico Trasporto pubblico
Cagliari
Cagliari
2,4 Km
Bonaria
Bonaria
1,1 Km
San Saturnino
San Saturnino
1,1 Km
della Pineta (ang. via Firenze)
della Pineta (ang. via Firenze)
150 m
della Pineta (ang. via Milano)
della Pineta (ang. via Milano)
160 m
Scuole Scuole
Scuola Elementare Randaccio
280 m
Scuola Media Tuveri
360 m
Liceo Alberti
430 m
I.P.S.S.S. "Sandro Pertini"
480 m
Scuola Dell'infanzia Via Corsica
540 m
Farmacia Farmacia
Farmacia
1,2 Km
Farmacia Solinas
1,4 Km
Piga
1,4 Km
Farmacia San Benedetto
1,7 Km
Farmacia Severino
2,1 Km
Ospedali Ospedali
Ospedale "Roberto Binaghi"
620 m
Clinica Villa S.Elena
2,3 Km
Ospedale Militare Amerigo Demurtas
2,4 Km
Pronto Soccorso San Giovanni di Dio
2,5 Km
ospedale San Giovanni di Dio
2,5 Km
Supermercati Supermercati
Margherita conad
240 m
Conad city
330 m
Conad City
480 m
Gieffe
950 m
Despar
1,0 Km
Negozi Negozi
Gieffe
830 m
DA.MARÒ Pane&Dolcezze
1,3 Km
Le plus bon
1,3 Km
Panificio Pasticceria Sardegna
1,4 Km
Il fornaio
1,4 Km
Bar Bar
Bar
260 m
Sala Feste Oplà
970 m
Villa Stelvio
1,3 Km
De Curtis
1,5 Km
Bar Monte Urpinu
1,5 Km
Ristoranti Ristoranti
Pepe Rosa
230 m
Gelateria "Ice Mu"
340 m
Pizzeria RariNantes
720 m
Vendita ricci di mare
810 m
Good
970 m
Mostra tutto

Caratteristiche

Rif.:
61118472
Piano:
Su più livelli di 3
Totale piani:
3
Posti auto:
1
Balconi:
1
Camere da letto:
3
Mostra tutto
Prezzo Prezzo
€ 649.000
Rata mutuo Rata mutuo
€ 3.000 / mese
Spese annue Spese annue
€ 0
Proponi il tuo prezzoProponi il tuo prezzo

Classe Energetica

G
G
G
G
G
G
G
G
G
EP globale non rinnovabile:
155.58 kW h/m² anno
EP globale rinnovabile:
155.58 kW h/m² anno
EP invernale del fabbricato:
EP estiva del fabbricato:
Anno di costruzione:
1967
Riscaldamento:
Autonomo
Tipo impianto:
Ad aria
Tipo alimentazione:
Aria

Prezzo ridotto di €1 (99%%)

Ti interessa visionare l'immobile?

Fissa un appuntamento  Fissa un appuntamento

Richiedi informazioni

* Questi campi sono obbligatori

Calcola il tuo mutuo

Semplice e senza impegno
Anticipo

( % )
Mutuo

( % )

pochi semplici passi

inserisci i tuoi dati
Questionario completato
Grazie per aver richiesto un appuntamento senza impegno con un nostro Consulente del Credito e Assicurativo.

Hai inserito correttamente tutti i dati necessari e a breve riceverai una e-mail con un link da convalidare per inviare i tuoi dati.
Affiliato
Sa Maddalena Immobiliare Srl
Via Tuveri, 92 09129 Cagliari (CA)

Il nostro staff


  • Giuseppino Bernardi
    Collaboratore

  • Laura Serra
    Collaboratrice

  • Valentina Todde
    Coordinatrice

  • Marco Congiu
    Affiliato
Via Tuveri, 92 09129 Cagliari (CA)
Zona: Monte Urpinu
Mostra su mappa
Affiliato
Sa Maddalena Immobiliare Srl
Via Tuveri, 92 09129 Cagliari (CA)

2025 Tecnocasa Franchising S.p.A. - P. IVA 08365160152 - Via Monte Bianco 60/A 20089 Rozzano (MI). Ogni agenzia ha un proprio titolare ed è autonoma. Privacy policy | Policy utilizzo | Cookie policy